Case Studies

Our work speaks for itself

We work with decision-makers in both B2B: business-to-business and B2G: business-to-government sectors. Our operations are primarily in South Africa, but our Founder has experience working on projects that involved international stakeholders in the UK and Australia.

Our Case Studies

Explore our case studies to see how ReaAgi Consulting Engineers has successfully delivered exceptional engineering solutions for a diverse range of clients. We take pride in our commitment to quality, sustainability, and client satisfaction.
Each case study highlights our innovative approach and the impact of our work on our clients and the environment. Join us in making your project a success story with ReaAgi Consulting Engineers.

Ba-Ga Motlhware Mix-use Development

Project Details:
The Problem: The tribal Kgotla, office and houses were old, some with limited functionality and has limited capacity for the proper operations of the Tribal Council.

Diesel Station Slab and Retaining Walls

Project Details:
The Problem: Oil and other hydrocarbons at the diesel station and the general maintenance
area were infiltrating and polluting the ground while loading of the crushed and screened
material needed to be contained so that it could be loaded efficiently.

Goodhope Water Reticulation

Project Details:
The Problem: Goodhope water reticulation, including pumping from a borehole, storage and reticulation.

Kalahari Sands

Project Details:
The Problem: There is a significant need for both residential and commercial developments in the Township of Mothibistad, located 10km north of Kuruman in the Northern Cape. As a result, Jalo Properties is undertaken a project to cater for this need.

Newcastle Buy Back Centre

Project Details:
The Problem: The Newvastle Buy Back Centre, which receives waste collected by locals for recycling, was constructed but no parking, walkways and stormwater infrastructure around the facility were installed.

Perth Mine Main Entrance Upgrade

Project Details:
The Problem: Upgrade of the Perth Mine Main Entrance, Water Reticulation, Shower Facilities and Ablution Facilities.

Workshop Concrete Slab

Project Details:
The Problem: Maintenance Workshop Concrete Slab (43m by 28m by 0,3m thick), including bases for the future steel structure

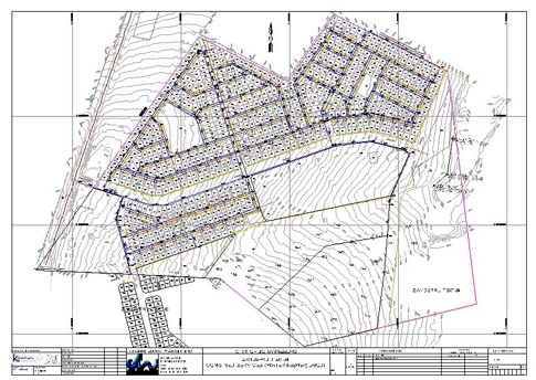
Zandspruit Ext.84 Water and Sewer Layout

Project Details:
The Problem: A new residential development in Zandspruit Extension 84, which comprises 703 individual stands and 2 065 high density residential units, required water and sanitation infrastructure.

Bontle Chicken Farm

Project Details:
The Problem: A requirement to expand the operations into poultry farming.

Cullinan Mine Slurry Pipe Diversion

Project Details:
The Problem: An existing 710mm diameter slurry pipe which is 2km long is difficult to maintain as its spares are hard to find, and has a section which is buried by an embankment.

PPC River Crossing And Cullinan Mine Srormwater Management

Project Details:
The Problem: PPC will be mining a new area within their mining rights area but an existing river prevents access to the site, while Cullinan mine has to deal with large volumes of stormwater that flows into the pit, which needs to be avoided.

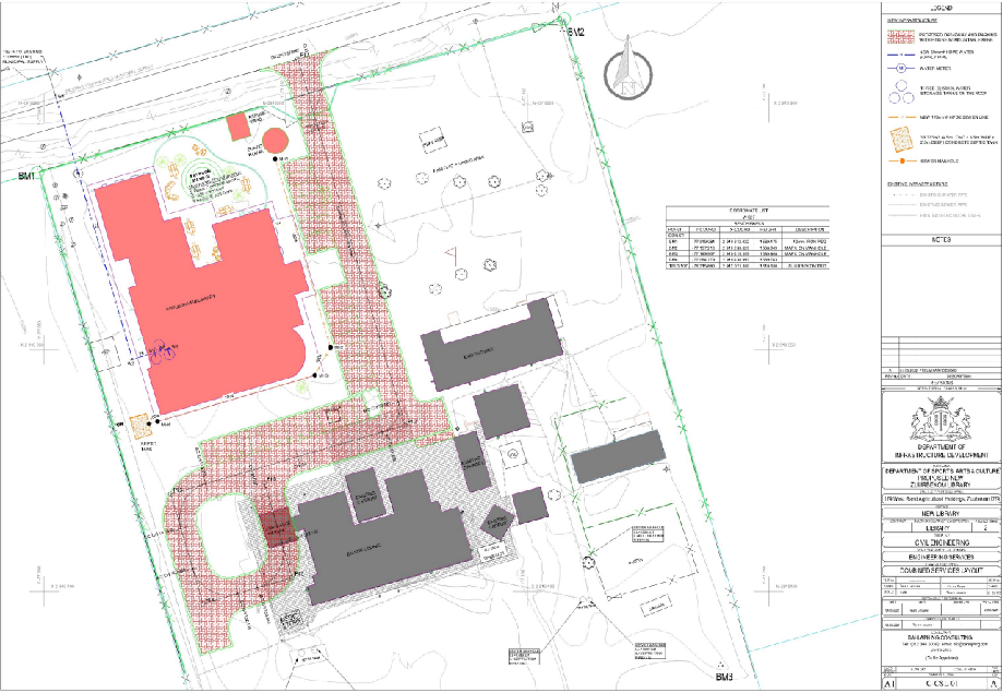
Zuurbekom Library

Project Details:
The Problem: PPC will be mining a new area within their mining rights area but an existing river prevents access to the site, while Cullinan mine has to deal with large volumes of stormwater that flows into the pit, which needs to be avoided.